DANS CETTE ÉDITION
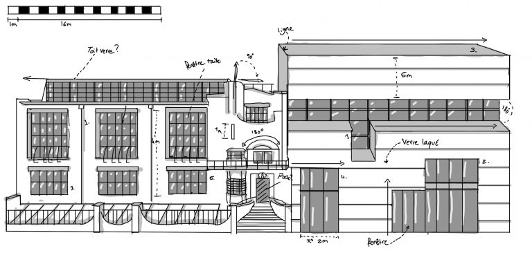
Fenêtre sur Mackintosh
Entre modernité et tradition, Facing up to Mackintosh retrace un…
Quand les mots choquent
Quel est l’impact de la violence verbale dans la création…
Bombardier, prise numéro deux
Bombardier couple restructuration et première vente de ses Séries C.
Quoi de neuf sur le campus ?
Rencontre avec la nouvelle doyenne de la faculté des Arts:…
Sous les pavés, Tio’tia:ké
McGill a un devoir de mémoire envers les peuples autochtones.
Ondes depuis la Satosphère
Résonances boréales asphyxiées sous le dôme de la Société des…
Rendez-vous avec le 7e art
Depuis trente-trois ans, les Rendez-vous du cinéma québécois (RVCQ) soutiennent…
Sartre à Hollywood
The Childhood of a leader, sombre drame historique au Centre…
Que faire de Jutra ?
La bonne conscience de nos actions est éphémère.
Dead Obies en coulisses
Le Délit a rencontré le groupe de post-rap Dead Obies,…
Ces changements qui ne viennent pas
La STM oublie ses clients à mobilité réduite.
Longue est la route
Espaces Politiques.
Le VIH : un virus ou un crime ?
La loi criminelle canadienne autour du VIH provoque plus de…
De l’acclamation à l’effacement
Les révélations sur Claude Jutra remettent en cause son œuvre.
Un document précurseur
Les étudiants de McGill proposent une politique de gestion des…
Le Québec subversif des années 1970
Le collectif Anarchives présente les mouvements contestataires LGBT et étudiants…
Pas de traduction, pas de titre
Éditorial.
À toute vapeur !
Avril et le monde truqué : le public du cinéma Impérial…
Veni, vidi, hihi
Les frères Coen dévoilent une nouvelle comédie tordante.
Humour noir pour cheveux blancs
Youth, sarcasme mélancolique sur la vieillesse, au Cinéma du Parc.



















